1013 Holmes Drive, Oxford, MS 38655
1013 Holmes Drive, Oxford, MS 38655
New 2BD Cottages at Lamar Landing!
Available early July! Lamar Landing will be a new 2BD/2BA stand-alone cottage development that is located off South Lamar Blvd. These will be wonderful stand-alone cottages for someone seeking serenity and quiet.
This new development is well underway by a local, reputable builder! Finishes will include quartz counter tops, stainless appliances and stained concrete floors! Sparc fiber internet and lawn care will be included in the rent. Pets are case by case with a non-refundable pet fee. Rent is $1,799 with a deposit of$1800. Completed property will be agent owned.
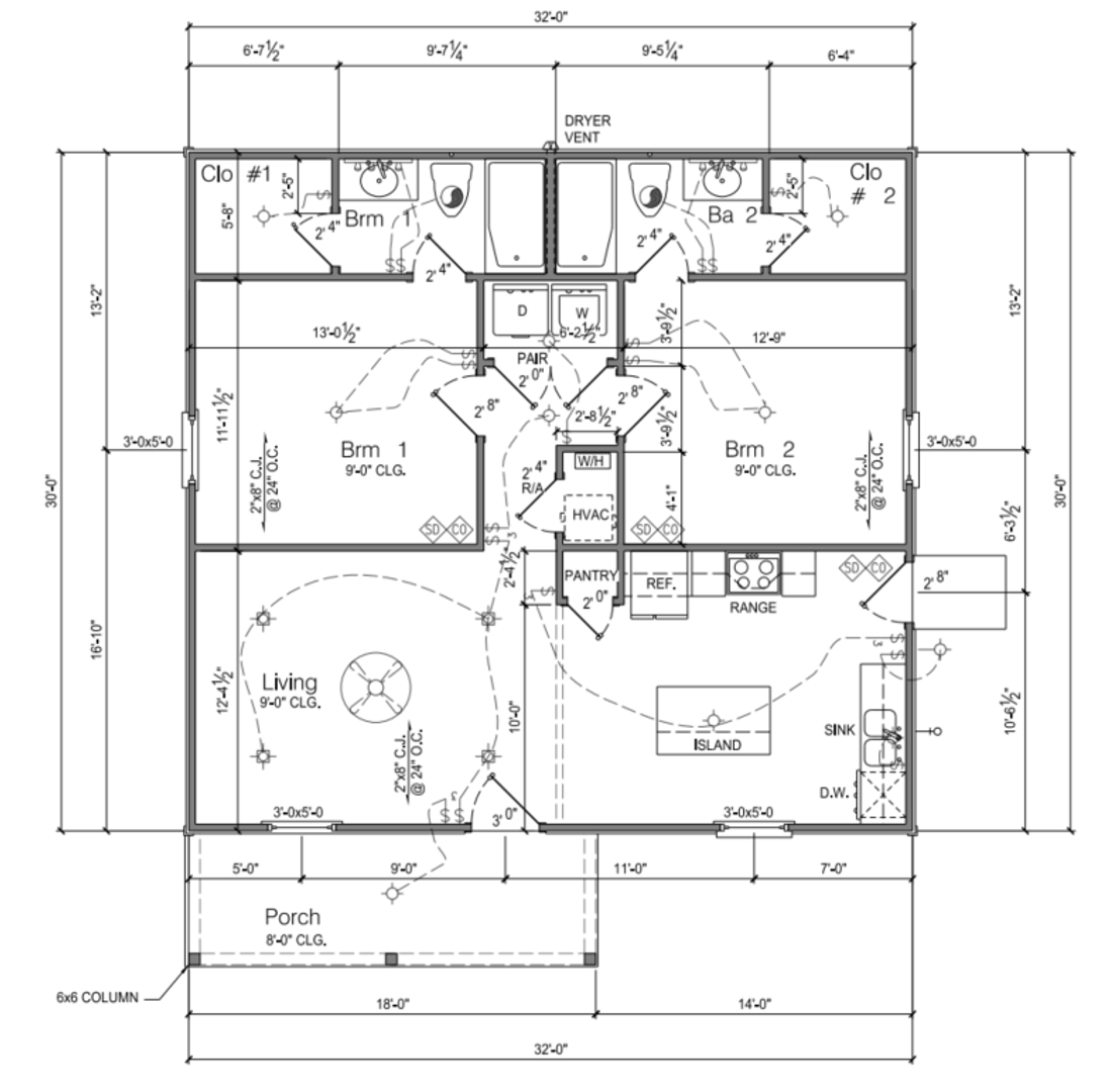
The floor plan is attached for the subject 2BR/2BA units. Interior finished pictures are from a sister development. These pictures are included to show the level of finish inside the unit.
$60 Non-refundable application fee per applicant. Credit & Background check required. Minimum credit score must be 620 or better with good payment history. Income must be at least 3 times the rent. If a student, a guarantor is required with a $60 non-refundable application fee due to the lack of typical income.
*** DO NOT DISTURB THE TENANT ***
Text or Email to schedule a showing.
Mississippi Property Group, LLC.
PH: 662-550-3054 (Text Preferred)
info@mississippipropertygroup.com
www.mississippipropertygroup.com
This new development is well underway by a local, reputable builder! Finishes will include quartz counter tops, stainless appliances and stained concrete floors! Sparc fiber internet and lawn care will be included in the rent. Pets are case by case with a non-refundable pet fee. Rent is $1,799 with a deposit of$1800. Completed property will be agent owned.
The floor plan is attached for the subject 2BR/2BA units. Interior finished pictures are from a sister development. These pictures are included to show the level of finish inside the unit.
$60 Non-refundable application fee per applicant. Credit & Background check required. Minimum credit score must be 620 or better with good payment history. Income must be at least 3 times the rent. If a student, a guarantor is required with a $60 non-refundable application fee due to the lack of typical income.
*** DO NOT DISTURB THE TENANT ***
Text or Email to schedule a showing.
Mississippi Property Group, LLC.
PH: 662-550-3054 (Text Preferred)
info@mississippipropertygroup.com
www.mississippipropertygroup.com
Contact us:






















